Стальной вертикальный радиатор Vogel&Noot Vertical Plan
VogelNoot Plan 101805
Описание
Vogel&Noot Vertical стальной вертикальный радиатор с плоской передней панелью - оптимальное решение при ограниченном пространстве. У Вас есть возможность выбрать цвет по палитры RAL, благодаря удачному дизайну подойдет к любому интерьеру, высокая тепловая мощность, что позволит создать оптимальный тепловой комфорт.
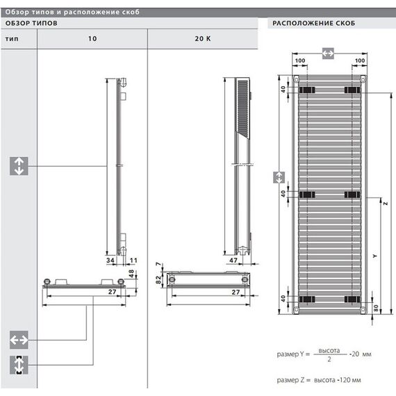
Радиатор Vogel&Noot Vertical оснащен скобами, расположенными на тыльной стороне прибора для его крепления к стене. Тип 20К поставляется с ажурными боковыми стенками, а в случае 10 - только панель. Удобен в монтаже, так как не занимает много места, рабочие давление 10 бар и максимальная температура 110°C.
Особенности
Торговая марка
Vogel Noot
Высота
1800
мм
Глубина
48
мм
Длина точная
500
мм
Теплоотдача 70С, Вт
696
Вт
Тип радиатора
10
тип
Площадь обогрева
9
м.кв.
Давление рабочее
10
Бар
Гарантия
10 лет
Производство
Польша
Отзывы
Отзывы не найдены
